Проект арматурного цеха с антресолью в Ногинске
Ключевые преимущества
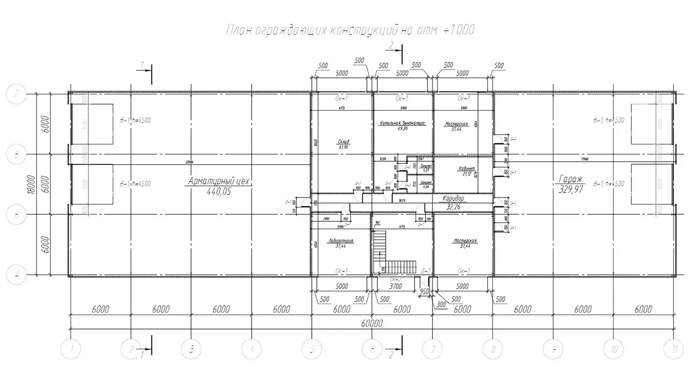
Строительство арматурного цеха с антресолью 24 × 48 × 6 м: надёжное решение для металлообрабатывающего производства
Представляем проект современного арматурного цеха с антресолью — функциональное и экономичное здание для организации производства по изготовлению и обработке арматурных каркасов, сеток и закладных деталей. Габариты 24 метра в ширину, 48 метров в длину и 6 метров в высоту обеспечивают достаточную площадь (1 152 м²) для размещения технологического оборудования, складских зон и вспомогательных помещений. Конструкция на основе стальных металлоконструкций гарантирует долговечность, устойчивость и возможность адаптации под специфику арматурного производства.
Конструктивные особенности и преимущества металлокаркаса
Каркас цеха выполнен из высокопрочной стали с антикоррозийным покрытием, что обеспечивает устойчивость к агрессивным производственным условиям и продлевает срок службы здания. Использование типовых металлоконструкций позволяет сократить сроки строительства и снизить затраты на монтаж. Пролёты без промежуточных опор создают свободное пространство для размещения станков, линий сварки и гибки арматуры, а также для организации логистики внутри цеха.
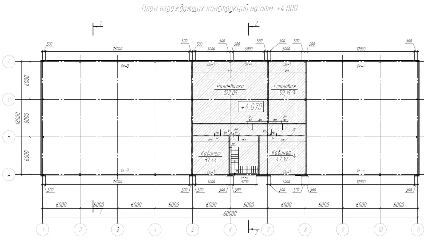
Антресоль, предусмотренная в проекте, эффективно увеличивает полезную площадь: на верхнем уровне можно разместить инженерные коммуникации, склад метизов и расходных материалов, административные помещения или зону отдыха персонала.
Планировка и зонирование производственного пространства в Ногинске
Продуманная планировка цеха позволяет выделить следующие функциональные зоны:
- производственная зона с оборудованием для резки, гибки и сварки арматуры;
- склад сырья с площадкой для разгрузки и хранения прутков, бухт и готовых каркасов;
- зона комплектации и отгрузки готовой продукции;
- вспомогательные помещения на антресоли: кабинет мастера, диспетчерская, склад инструментов;
- технические помещения для размещения электрощитов, вентиляционного и компрессорного оборудования.
Широкие проходы и продуманные маршруты перемещения материалов минимизируют простои и повышают производительность труда.
Материалы и технологии строительства
В проекте используются современные материалы, обеспечивающие энергоэффективность и комфорт работы:
- стальной каркас с антикоррозийной обработкой;
- ограждающие конструкции из сэндвич‑панелей с утеплителем для поддержания оптимального микроклимата;
- кровля из профилированного листа с гидроизоляцией и системой водостока;
- ворота и двери промышленных серий с высокой износостойкостью;
- антресольная площадка с несущими балками и настилом, рассчитанная на нормативные нагрузки.
Инженерные системы и оснащение
Цех оснащён всеми необходимыми инженерными коммуникациями для бесперебойной работы производства:
- мощная электросеть с резервным вводом для подключения станков и сварочного оборудования;
- приточно‑вытяжная вентиляция для удаления сварочных аэрозолей и поддержания воздухообмена;
- отопление (воздушное или водяное) для работы в холодное время года;
- пожарная сигнализация и система пожаротушения;
- освещение с учётом норм для производственных помещений (общее и локальное над рабочими местами).
Сроки реализации и экономическая эффективность в Ногинске
Строительство арматурного цеха «под ключ» занимает 4–6 месяцев — от проектирования до сдачи объекта в эксплуатацию. Быстровозводимая конструкция позволяет оперативно запустить производство и начать получать доход. Инвестиции в такой цех окупаются за счёт:
- сокращения затрат на аренду сторонних площадей;
- повышения производительности благодаря эргономичной планировке;
- долговечности металлоконструкций (более 50 лет службы);
- возможности расширения производства без реконструкции здания.
Свяжитесь с нами, чтобы получить детальный расчёт стоимости проекта и обсудить индивидуальные условия сотрудничества!
Этапы строительства в Ногинске
Технические характеристики
Полная спецификация проекта
Области применения арматурного цеха
Универсальное производственное пространство для металлообработки и смежных задач
Производство арматурных каркасов и сеток
Цех полностью адаптирован для изготовления сварных и вязаных арматурных конструкций разных типоразмеров. На основной площади размещаются станки для резки и гибки арматуры, сварочные посты и сборочные линии. Антресоль можно использовать для хранения чертежей, технологической оснастки и мелких комплектующих.
Металлообрабатывающее производство
Помещение подходит для организации участков по обработке металлопроката: рубки, гибки, сверления и сварки. Высота и свободная планировка позволяют разместить крупногабаритные станки. На антресоли удобно расположить инструментальную кладовую и зону контроля качества.
Изготовление закладных деталей и металлоконструкций
В цехе можно наладить выпуск закладных изделий для ЖБИ, монтажных петель, кронштейнов и других элементов. Антресольный этаж задействуется под конструкторское бюро, склад метизов или зону подготовки документации.
Склад сырья и готовой продукции
- хранение арматурных прутков, бухт проволоки, листового металла;
- зона комплектации заказов с погрузочной рампой;
- склад готовых каркасов и сеток с маркировкой по объектам;
- антресоль — для учёта материалов, размещения электронных архивов и сопроводительной документации.
Административно‑бытовой блок на антресоли
- кабинет мастера участка и инженера‑технолога;
- комната отдыха и раздевалка для рабочих;
- душевая и санузел;
- помещение для инструктажей и совещаний.
Сервисный центр по ремонту оборудования
Пространство позволяет организовать ремонт гибочных станков, сварочных аппаратов и другого оборудования. Основная зона — для ремонтных постов, антресоль — для склада запчастей и диагностических приборов.
Учебно‑производственный участок
Цех может служить базой для обучения сварщиков и арматурщиков. На производственной площадке проводятся практические занятия, на антресоли — теоретические курсы, тестирование и хранение учебных материалов.
Линия по изготовлению арматурных изделий под заказ
Гибкая планировка позволяет быстро перенастраивать оборудование под индивидуальные заказы строительных объектов. Антресоль используется для хранения спецификаций, образцов и инструментов контроля.
Комплексный производственный комплекс
Объединение нескольких функций в одном здании: производство арматуры, участок металлообработки, склад сырья и готовой продукции, административные помещения. Антресоль служит связующим звеном между зонами, обеспечивая удобный доступ к инженерным коммуникациям и системам управления.
Окупаемость арматурного цеха с антресолью 1152 м2
Экономическая эффективность инвестиций в производственную инфраструктуру
Сокращённые сроки строительства
Быстровозводимая конструкция на основе металлоконструкций монтируется за 4–5 месяцев. Ранний ввод цеха в эксплуатацию позволяет быстрее начать производство и получать доход, что напрямую влияет на сокращение срока окупаемости.
Высокая рентабельность производства
Выпуск востребованной продукции (арматурных каркасов, сеток, закладных деталей) обеспечивает стабильный доход. Оптимизация технологических процессов и снижение себестоимости за счёт собственного производства арматуры повышают общую рентабельность проекта.
Снижение капитальных затрат
Использование металлоконструкций позволяет сэкономить до 25 % бюджета по сравнению с традиционными методами строительства. Антресоль увеличивает полезную площадь без расширения земельного участка — это снижает затраты на аренду или покупку дополнительной территории.
Гибкость и масштабируемость
Конструкция цеха позволяет легко модернизировать оборудование и расширять производственные мощности. При росте спроса можно добавить новые линии без капитальной реконструкции здания, что сохраняет инвестиции и ускоряет выход на новые объёмы выпуска.
Долговечность и низкие эксплуатационные расходы
Стальной каркас с антикоррозийным покрытием служит более 50 лет. Энергоэффективные материалы (сэндвич‑панели, современное остекление) сокращают затраты на отопление и кондиционирование. Минимальное обслуживание металлоконструкций снижает ежегодные операционные расходы.
Расчёт окупаемости
- средний срок окупаемости: 3–4 года;
- начальная загрузка производства: от 60 % мощностей;
- прогнозируемая прибыль при полной загрузке: от {profit} руб./год;
- возможность получения налоговых льгот для производственных предприятий;
- сохранение остаточной стоимости здания при перепродаже или перепрофилировании.
Дополнительные источники дохода
Антресольный этаж можно использовать для сдачи в аренду под офисы, склад документации или размещение смежных производств. Это создаёт дополнительный денежный поток без увеличения производственной нагрузки на основную площадь цеха.
Подтверждение качества материалов и производства
.jpg)
.jpg)
.jpg)
.jpg)